Here you can configure your e-chain system® individually. All entries and changes are taking over to the part list which is situated at the end of the page.
Classic 2450AG series - Half tube, openable along the inner radius
In this version, special plastic glide shoes are fitted to the sides of the e-chain® links every 1,000 to 2,000mm. These glide shoes resemble the leeboards used on sailing boats. The leeboards pivot upwards when they make contact with land and enable the continuation of travel. Similarly, the glide shoes in AUTOGLIDE go up and down, each according to its position on the lower or upper run of the chain. They provide the precise lateralguidance and a smooth gliding of the e-chain®.
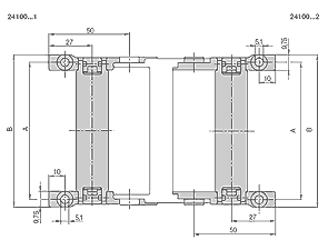
The glide shoes are assembled every 20th chain link from the fixed end of the e-chain®. Chain link assembled.
2400/2450/2480/2500 series up to 15mlength possible without additional glide shoes.
Feed point = end travel
Chain length = S + K
Number of glide shoes
= (chain length [m] - 4m)/0.92m
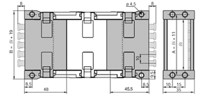
Please note: 31mm must be added to the outer width of the chain for the width of the two glide shoes!